
La Linea Paradiso 52 in alluminio a Taglio Termico è la più valida risposta alle attuali esigenze di isolamento termico conciliando funzionalità, durata ed economicità, senza tralasciare l'estetica del serramento che proponendosi con una serie di sagomature ricalcanti lo stile del legno diventa un'ottima soluzione per chi non vuole rinunciare alle classiche morbide linee.
La Linea Paradiso 52 viene realizzata sia per porte che per finestre, qui di seguito vogliamo illustrarvi tutti i modelli di finestre e porte che la nostra azienda produce con la Linea Paradiso, soffermandoci sugli accessori di alta qualità che vengono utilizzati per la loro realizzazione. |
| SPESSORE |
|
MATERIALI |
- La Linea Paradiso 52 ha uno spessore di profilo di 52 mm. Questo spessore le consente di rispondere, in tema di tenuta agli agenti atmosferici e di risparmio energetico alle richieste del mercato.
- Grazie ad una completa separazione tra la parte del profilo a
contatto con l'ambiente interno e quella a contatto con
l'ambiente esterno è in grado di ridurre notevolmente la
trasmittanza termica. Tale separazione avviene
attraverso l'inserimento di barrette in materiale isolante
che delimitano camere d'aria chiuse all'interno del serramento.
|
- I profili in alluminio a Taglio Termico dei telai e delle ante smussati per una migliore penetrazione della luce, i bordi arrotondati, le soluzioni personalizzate, la ferramenta di chiusura e gli accessori di qualità, garantiscono oltre all'aspetto estetico piacevole ed esclusivo, un funzionamento senza problemi e duraturo nel tempo.
- Per il Risparmio energetico si ha l'impiego di astine di materiale isolante che interrompono il passaggio di calore fra le superfici esterne ed interne del serramento.
|
 |
 |
| ACCESSORI DI SERIE |
COLORI |
La Linea Paradiso 52 è dotata di molteplici accessori di serie che la rendono unica nel suo genere, completa in ogni sua parte per un migliore e semplice uso per l'utente finale. Negli accessori di serie sono compresi principalmente:
- Maniglie
- Cerniere
- Aste di chiusura
- Guarnizioni di tenuta
- Riscontri di chiusura
|
La Linea Paradiso 52 può essere prodotta in un' ampia scelta di colori a seconda delle necessità. I colori disponibili si possono suddividere in due grandi famiglie:
-
Colori Essenza Legno: Resistenti agli urti, inattacabili dalle intemperie del clima, inalterabili ai raggi ultravioletti, lavabilissimi; risolvendo brillantemente ed economicamente una volta per tutte il problema della manutenzione. Nel pieno rispetto della natura e senza rinunciare all'eleganza del legno.
-
Colori Ral : Resistenti agli urti, brillanti oppure opachi sempre inattacabili dalle intemperie del clima, inalterabili ai raggi ultravioletti, lavabilissimi; risolvendo brillantemente ed economicamente una volta per tutte il problema della manutenzione.
|

|
 |
| VETRO |
MODELLI REALIZZABILI |
Planiterm One 2/2 - 16 argon - 2/2
-
K= 1.0 W/m2k
-
Vetro ad altissime prestazioni.
-
Planiterm One: stratificato 2/2 mm vetro ad elevatissime prestazioni per il risparmio energetico.
-
16 argon: canalina interna di larghezza 16 mm con intercapedine (distanza tra i due vetri di 16 mm) riempita di gas argon, gas ad alto potere isolante.
|
La Linea Paradiso può essere realizzata ad una, due o tre ante apribili e in molteplici modelli che vanno dal semplice infisso a vetro unico ai più elaborati infissi con vetri suddivisi in più parti, possiamo esaudire qualsiasi richiesta.
qui sotto alcuni esempi di modelli realizzabili nella nostra struttura. |
 |
    |
|
| MANIGLIA CON CHIAVE |
|
GANCI TENDE |
|
SISTEMA A SPIFFERO |
| La maniglia a richiesta può essere fornita con chiusura a chiave, come visibile in figura qui sotto, sempre nei medesimi colori disponibili per la maniglia di serie. |
A richiesta si possono avere i ganci per le tendine, di colore nero, molto resistenti e adattabili a qualsiasi bacchetta per tende preesistente. |
A richiesta si può avere un sistema di semi-chiusura, praticamente l'infisso e chiuso ma lascia il passaggio a uno spiffero d'aria, da questo il nome sistema a spiffero. |
 |
 |
 
|
| VETRO |
STILE DEL VETRO |
ANTA-RIBALTA |
Futur N Ultra / 14 argon / 3/3 antisfondamento

|
Il vetro fornito di serie senza alcuna lavorazione, a richiesta si può avere un vetro con due tipi di lavorazione:
- Inglesina molata sul vetro interno: nella parte interna del vetro camera sul vetro interno viene eseguita una lavorazione di molatura del vetro che disegna un vetro all' inglesina, naturalamente il vetro resta sempre liscio nella parte esterna.
- Inglesina interna dorata: tra i due vetri, nello spazio della canalina viene posta una struttura agganciata alla canalina del vetro che disegna il vetro all' inglesina.
|
- L'apertura ad anta-ribalta è un sistema di chiusura che permette all'anta della finestra di rimanere aperta nella parte superiore ed ancorata al telaio nella parte inferiore. Questo tipo di apertura consente all'aria di entrare senza l' ingombro dell'anta all'interno e di aerare gli ambienti.
- Questo sistema è possibile utilizzarlo sia su una finestra ad un'anta, sia a due ante che tre ante senza alcun problema, ricordando che sempre solo un'anta sarà anta-ribalta.
- Questo sistema può essere richiesto escusivamente sulle finestre.
|

|
 |

|
| APPROFONDIMENTI ACCESSORI DI SERIE |
| MANIGLIE |
|
CERNIERE |
|
GUARNIZIONI |
|
RISCONTRI DI CHIUSURA |
La maniglia ha l'essenza della funzionalità in una forma ideale ampiamente sperimentata, è un tipo di maniglia estremamente resistente all'usura, con una presa sicura ed ergonomica. Realizzata completamente in fusione d' alluminio, può essere richiesta in tinta ottone, con trattamento PVD, oppure con una colorazione RAL a scelta. |
Le cerniere hanno un' alta qualità costruttiva e grande resistenza all' usura ed alla corrosione. Realizzata completamente in fusione d' alluminio, può essere richiesta in tinta ottone, con trattamento PVD, oppure con una colorazione RAL a scelta del cliente.
|
- Guarnizioni in EPDM,
- Ottima resistenza all' ossidazione, ai raggi UV ed agli agenti atmisferici in genere.
- L' estrema morbidezza della guarnizione garantisce la massima chiusura del serramento.
|
- Tutti i riscontri di chiusura della maniglia, sia inferiore che superiore sono realizzati in ZAMA.
- I puntali di chiusura della maniglia sono realizzati in accaio inox, per una maggiore resistenza all' usura e all' efrazione.
|


|
 |


|
 
|
| APPROFONDIMENTI SUI MATERIALI |
| CHE COS'E L' EPDM ? |
|
IL PVD |
La gomma EPDM (conosciuta anche con il nome commerciale di DUTRAL), è un elastomero sintetico ottenuto dalla polimerizzazione di ETILENE-PROPILENE- Le nostre guarnizioni in EPDM vulcanizzato in continuo sono realizzate con mescole formulate per esaltare le caratteristiche di questa gomma sintetica che, con particolare riguardo all’ impiego come guarnizioni di tenuta per serramenti, sono:
- Eccellente resistenza all’ invecchiamento, all’ozono ed ai raggi UV.
- Buone caratteristiche fisiche-meccaniche in un ampio campo di temperature di utilizzo (da -40 a 130°C).
- Bassa deformazione permanente a trazione e compressione (compression set).
La vulcanizzazione delle nostre guarnizioni in EPDM è di tipo perossidico, in questa trova riscontro l’ottimo valore del compression set e l’ampio intervallo di temperature di impiego. L’ EPDM è di fatto 1’ elastomero più vantaggioso per la realizzazione di guarnizioni per i quali sia richiesto il mantenimento delle proprie caratteristiche a seguito di prolungata esposizione ai raggi solari, a cicli termici ed a sollecitazioni meccaniche. La giunzione degli angoli delle guarnizioni in EPDM è normalmente eseguita per incollaggio a freddo, con collanti a base di cianoacrilati specifici per materiali elastomerici, oppure utilizzando angolari prestampati. |
|
Nata per applicazioni in campo aerospaziale, questa recente tecnologia è particolarmente indicata per i prodotti di alto valore decorativo. Ma è ottimale anche per articoli che hanno bisogno di un rivestimento funzionale, perchè soggetti ad usura per sfregamento o perchè utilizzati in ambienti corrosivi.
Il PVD e l' ambiente: Soluzione ideale per il mondo dei serramenti, il rivestimento PVD è frutto di una tecnologia assolutamente ecologica, che consiste nell' evaporazione di una sorgente metallica in una camera sottovuoto: i vapori metallici depositano poi uno strato purissimo di nitruro di zirconio sulla superficie dei pezzi.
Le caratteristiche tecniche del PVD: Grazie all' uso di sofisticate strumentazioni, il risultato finale non è solo di grande effetto estetico, ma presenta anche eccezionali caratteristiche: il rivestimento PVD raggiunge una durezza di 2000, 2500 HV, contro gli 800 di un riporto cromo galvanico. I test più rigorosi hanno anche dimostrato che è resistente ai solventi ed alla decolorazione: ossidando a temperature superiori ai 400°c, infatti, i colori non si alterano nel tempo. Inoltre, il nitruro di zirconio è conforme alle norme ISO 9227, ASTMB117 e DIN50021 per quanto riguarda la prova della camera salina.
|
CHE COS'E' LA ZAMA?
|
|
IL NYLON |
Il termine Zama indica un gruppo di leghe ad alto tenore di zinco e deriva dalla contrazione dei suoi componenti :
Zinco, Alluminio e MAgnesio .
La Zama grazie alle sue innumerevoli proprietà di resistenza nel tempo agli agenti atmosferici e alle sollecitazioni, trova sempre un più largo impiego, ad esempio nel settore automobilistico, nei motocicli e negli accessori per il bagno. |
|
I NYLON sono uno dei polimeri più comuni per realizzare delle fibre. Il nylon si trova praticamente in tutti i vestiti, ma anche in altri posti, come polimero termoplastico. Il primo vero successo del nylon è legato al suo impiego per farne calze da donna, nel 1940. Furono un grande successo commerciale, ma furono subito difficili da trovare , in quanto l'anno dopo gli USA entrarono in guerra, (la Seconda Guerra Mondiale) ed il nylon veniva impiegato per realizzare i paracdute e le funi. Prima però delle calze o dei paracadute, il primo prodotto commerciale realizzato in nylon fu uno spazzolino da denti con le setole in nylon.
I nylon sono anche detti poliammidi, per il caratterisitico gruppo ammidico presente nella catena principale. Le proteine, come la seta della quale il nylon è spesso diventato un sostituto, sono anch'esse delle poliammidi. Questi gruppi ammidici sono molto polari, e possono legarsi tra loro con legami idrogeno. Per questo motivo, e grazie al fatto che la catena principale del nylon è così regolare e simmetrica, i nylon sono spesso cristallini, e formano delle fibre molto buone. |
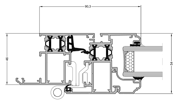
INGOMBRO PROFILO
Qualità molto importante da non sottovalutare è il minimo ingombro dello spessore del profilo, limitando al minimo la riduzione della luce del vetro, come si può vedere qui di seguito. Lo schema qui sotto riportato vale sia per una finestra ma anche per una porta, dato che le sezioni dei profili non cambiano tra un tipo di serramento e l'altro. |
Prendiamo in esame come esempio un foro muro (o vano della vecchia finestra) con una larghezza di 950 mm e un'altezza di 1350 mm. Il foro muro può essere inteso come foro vero e proprio con telaio zincato a murare, oppure nella ristrutturazione il vano utile rimasto dopo aver rimosso le ante della vecchia finestra, per poi posare quella nuova. |
|
Grazie alle nuove tecniche di posa studiate dalla Gattino Alluminio possiamo posare un serramento con le seguenti misure altezza 1400 mm e larghezza 1000 mm, non ingombrando eccessivamente il foro muro a disposizione e pertanto avendo un grande benificio per la luce del vetro che avremmo in finale, di seguito spiegata. |
|
Con un serramento di larghezza 1000 mm e di altezza 1400 mm abbiamo una luce vetro in larghezza di 339 mm per anta e perciò un vetro nel complessivo di 680 mm. Questo vetro ha una misura di luce più ampia rispetto alle finestre che normalmente si possono trovare in commercio, questo grazie ai profili del serramento che sono molto più stretti.
|
 |
 |
 |
|
GATTINO ALLUMINIO DI GATTINO ELIO - VIA BRA 26A - 12030 CAVALLERMAGGIORE (CUNEO) - PIEMONTE - ITALIA
PARTITA IVA 02864350042
TELEFONO 0172 381162 - INTERNET: E-MAIL commerciale@gattinoalluminio.it
Copyright / Privacy |
|